
ZJHN型氣動薄膜雙座調節閥是常用的執行器之一。閥內有兩個閥座,流體通過閥芯與兩個閥座之間的上下密封面流出,因而流通能力,不平衡力小。適用于流量大、壓差大,泄漏量要求不高的場合。
ZJHN型氣動薄膜雙座調節閥是常用的執行器之一。閥內有兩個閥座,流體通過閥芯與兩個閥座之間的上下密封面流出,因而流通能力,不平衡力小。適用于流量大、壓差大,泄漏量要求不高的場合。
1、規格與技術參數
注:可為用戶提供ANSI、JPI、JIS等國外法蘭標準的產品,基法蘭距按用戶需要確定。
2、執行機構主要技術參數
3、主要技術性能指標
可配附件
定位器、壓力表、手輪、電磁閥、限位開關、電/氣轉換器、空氣過濾減壓器
4、允許壓差
注:使用條件為閥桿在介質流出端關閉P2=0狀態下。
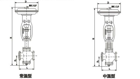
5、外形尺寸
訂貨須知
訂貨時請注明:
1、產品型號
2、公稱壓力
3、公稱通徑、閥座直徑
4、彈簧范圍
5、流量特性
6、使用特性
7、使用溫度
8、閥前閥后壓力
9、閥體、閥芯、閥座材質
10、附
全國服務熱線